Monteringsanvisning för anslutningsprofiler
Montering:
Våra monteringsanvisningar guidar dig steg för steg i arbetet. Om du känner dig osäker kan du alltid kontakta oss eller låta en fackman montera fönstren. Kom ihåg att våra produkter inte är svåra att montera, men det är viktigt att göra rätt.
Skötsel:
Våra PVC produkter är underhållsfria. Det enda du behöver tänka på är rengöring så att det ser snyggt ut och smörja alla mekaniska delar så som gångjärn och handtag. Rengörning av karmarna görs med varmt vatten och såpa. Kom ihåg att torka bort allt medel och att det inte får innehålla någon alkohol.
Garanti:
Profilerna har 10 års garanti och glasen har 10 års garanti.
Observera att garantierna för produkterna ej gäller vid felaktigt montage eller bristande
skötsel.
OBS! Komihåg att ta bort skyddsfolien på produktens karmar och bågar efter montage. Om det lämnas kvar eller förvaras i starkt solljus kan folien lämna permanenta spår. Montering av fönsterbleck kan med fördel ske före montaget i väggen.
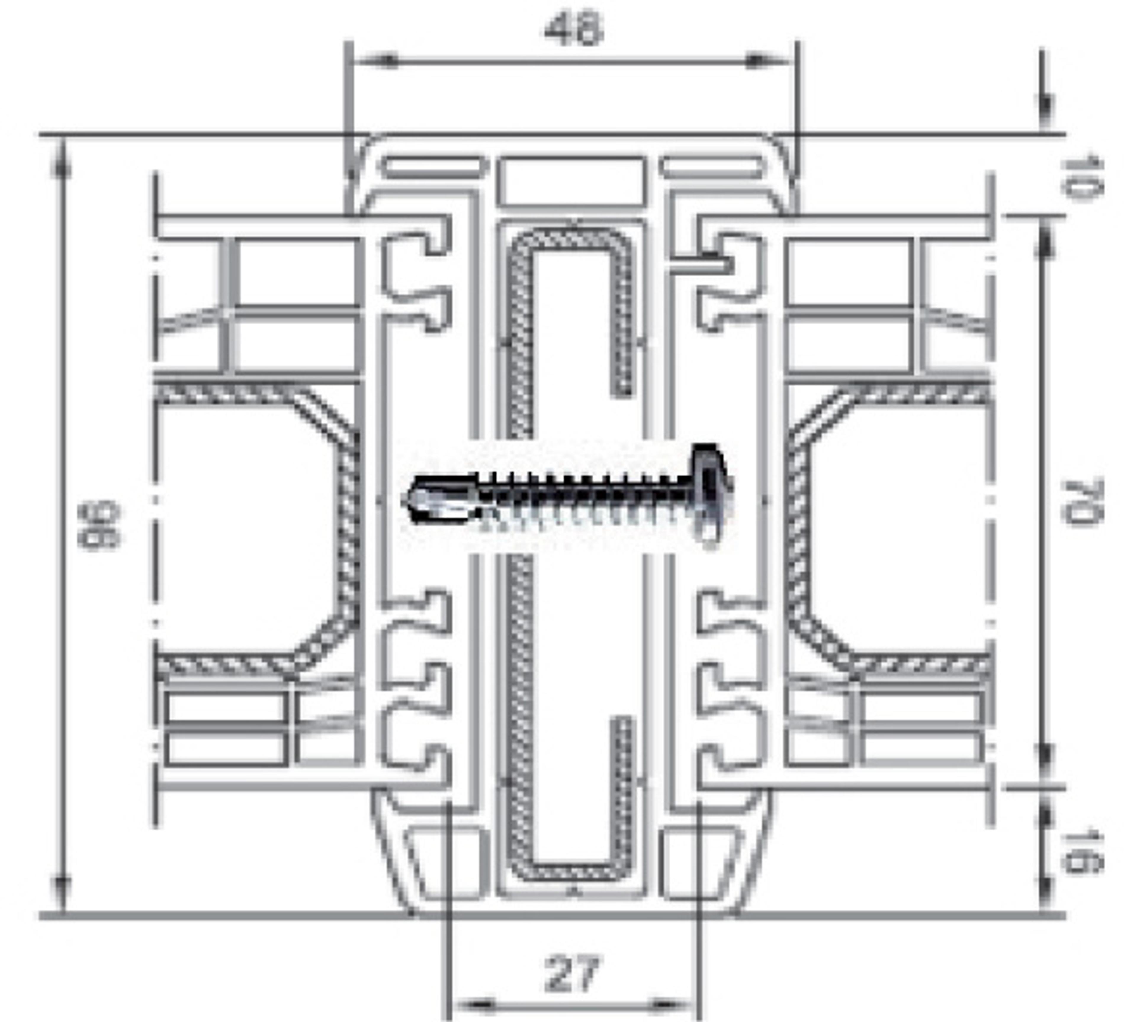
1. Montage av fönster-/dörrkarmar mot varandra: Karmarna bör skruvas ihop (i fasta fönster då man tagit ut glaskassetterna i ett av fönstren), genom u-profilen av stål. Förborra med 6mm borr. Borra därefter upp det första skiktet av pvc-plast med ett 14mm borr så att man kan dra skruvens skalle ända in till botten av stålprofilen, med t.ex. en skruvdragare och dess bitshållare. Hålet kan man sedan täcka med en vanlig 14mm karmskruvsplugg. Avståndet mellan skruvarna skall inte överstiga 50cm, och inte vara mer än 20cm från ytterhörnen.
Vid H-list, använd en självborrande skruv 5x40mm.
Vid stålprofil, använd en självborrande skruv 5x40/5x60mm.
OBS! Man kan skada glaset om längre skruv används!
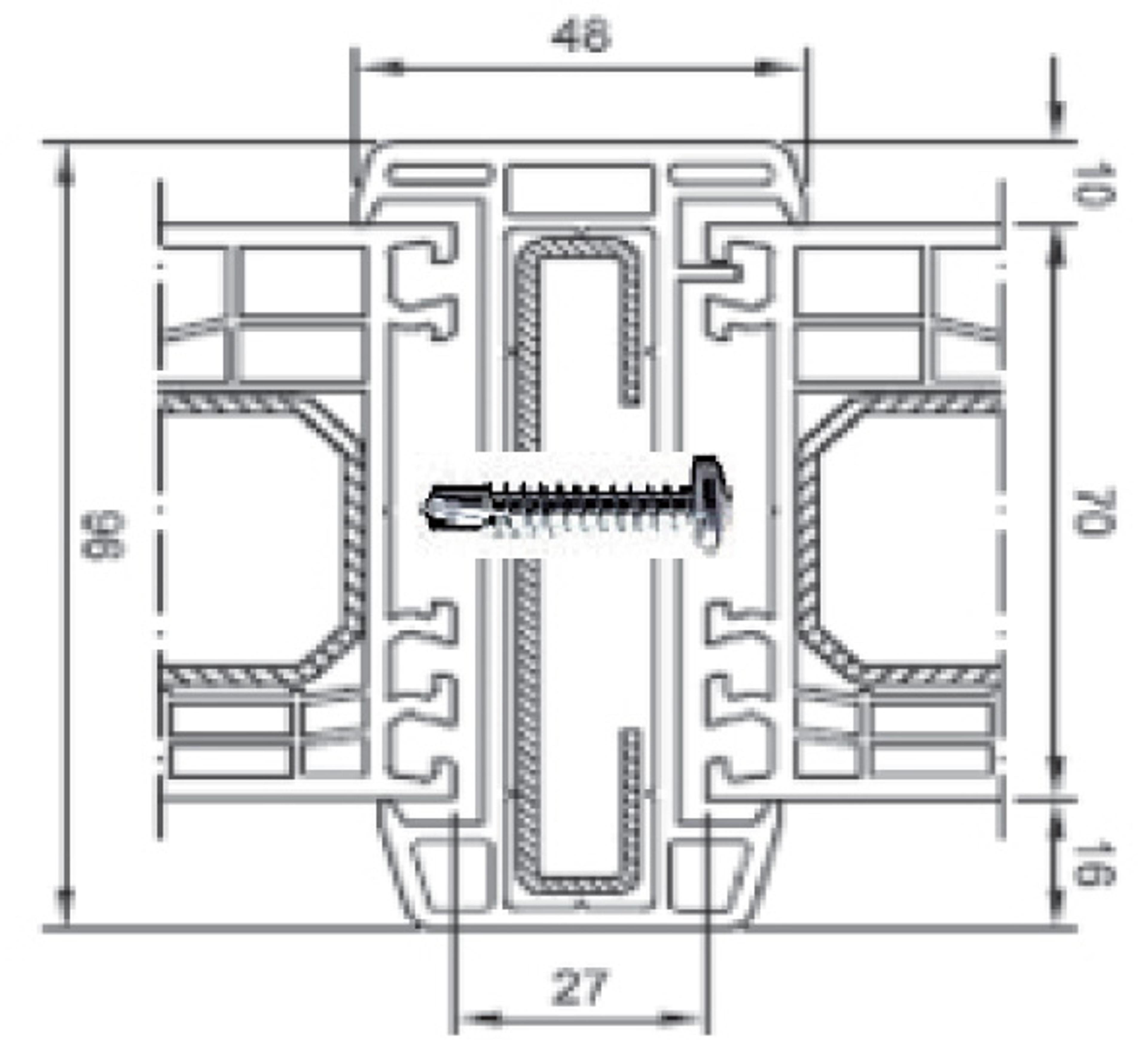
1. Montage av fönster-/dörrkarmar mot varandra:
Karmarna bör skruvas ihop (i fasta fönster då man tagit ut glaskassetterna i ett av fönstren), genom u-profilen av stål. Förborra med 6mm borr.
Borra därefter upp det första skiktet av pvc-plast med ett 14mm borr så att man kan dra skruvens skalle ända in till botten av stålprofilen, med t.ex. en skruvdragare och dess bitshållare.
Hålet kan man sedan täcka med en vanlig 14mm karmskruvsplugg. Avståndet mellan skruvarna skall inte överstiga 50cm, och inte vara mer än 20cm från ytterhörnen.
Vid H-list, använd en självborrande skruv 5x40mm.
Vid stålprofil, använd en självborrande skruv 5x40/5x60mm.
OBS! Man kan skada glaset om längre skruv används!





